LGMDLP
2019
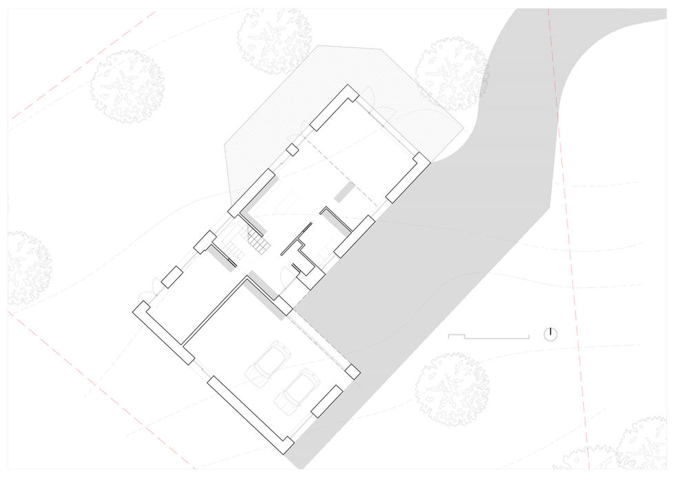
Construction Neuve – Saint Jean de Tholome (74)
Situé en Haute Savoie, sur la commune de Saint Jean de Tholome, le terrain est marqué par deux aspects : une forte déclivité et une vue magnifique, vierge de toute construction.
Dans un paysage mêlant activité agricole et pavillon ,la réflexion porte ici sur la réinterprétation de l’idée d’habitat haut savoyard.
Comment un abri agricole peut devenir une habitation et se confronter ou se confondre à l’habitat traditionnel. Est ce possible ? Quelle façon de vivre cela induit ?
La volonté de préserver la vue et le territoire conditionne l’implantation de la maison. En retrait sur la parcelle, elle s’oriente naturellement vers la paysage.
L’idée se construit autour d’une succession de portiques ouvrants sur un pignon entièrement vitré.
Maitrise d'ouvrage : Privé
Maitrise d'oeuvre : QMArchitecte
Programme : Construction d’une maison
Surface : 200 m2
Budget : ... € HT
Calendrier : - Etudes -








